Выберите услуги

Продается просторный и современный загородный дом в престижном поселке Боровляны.

55 просмотров за все время, 10 с мобильных сегодня 1, неделя 5, месяц 55 Добавлено - 29.04.2026
495 000 $  
цена действительна ТОЛЬКО при ссылке на hata.by
Подписаться на изменение цены
Площадь361.1 м2
Агентство недвижимости Сильван-Инвест
Почта
flat@silvan7800.by
Телефон
+375 (29) 196-39-03
+375 (29) 778-38-91
Описание
Продается просторный и современный загородный дом в престижном поселке Боровляны. Этот объект идеально подходит для тех, кто ценит комфорт, продуманные планировки и высокое качество жизни в ближайшем пригороде.

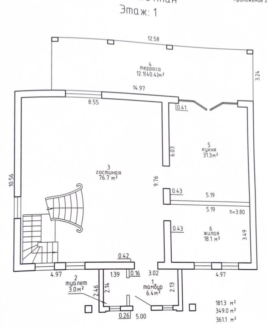
Главной особенностью первого этажа является огромная гостиная площадью 76,7 кв.м, которая станет центром притяжения для всей семьи и гостей. Рядом расположена просторная кухня (31,3 кв.м), полностью готовая к кулинарным экспериментам. Также на уровне находятся жилая комната площадью 18,1 кв.м, гостевой санузел и выход на уютную террасу для отдыха на свежем воздухе.

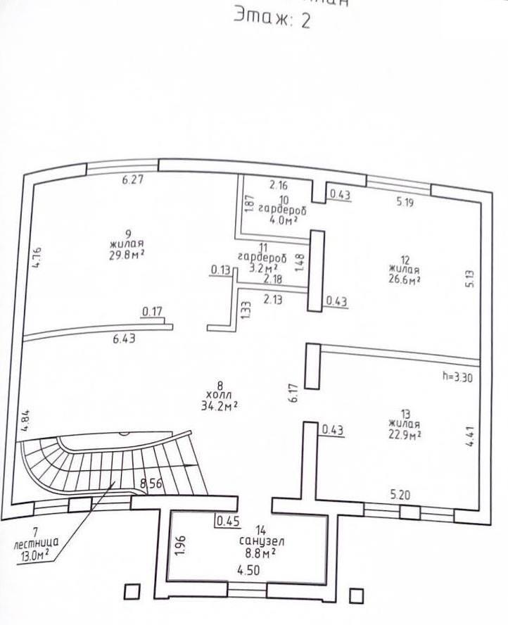
Второй этаж спроектирован как приватная зона для сна и отдыха. Здесь разместились три светлые спальни, две вместительные гардеробные, позволяющие эффективно организовать хранение вещей, и большой санузел.

Функциональный цокольный этаж значительно расширяет возможности быта. В нем оборудованы топочная, кладовая для хранения припасов и инвентаря, дополнительный санузел и полноценная вторая кухня, что крайне удобно при проведении заготовок или обслуживании семейных праздников.

Придомовая территория полностью благоустроена: выполнен ландшафтный дизайн, дорожки вымощены, организованы зоны для отдыха. Дом расположен в тихом месте с хорошими подъездными путями и развитой инфраструктурой Боровлян.

Этот дом ждет своего ценителя — того, кто оценит безупречный стиль и захочет наполнить эти стены своей историей. Позвольте себе роскошь жить там, куда всегда хочется возвращаться. Свяжитесь с нами сегодня, чтобы сделать первый шаг к вашей мечте.

Информация об объекте
Расстояние от МКАД 5 км
Общая площадь 361.1 м²
Жилая площадь 181.3 м²
Год постройки 2021
Материал стен блочный
Свет есть
Вода рядом водопровод
Газ нет
Дата обновления 18.05.2026
Дата добавления 29.04.2026
Квартира на карте
Минская обл. д. Боровляны
265 000 $  
Продажа уютного коттеджа г. п. Боровляны, ул. Горная. Коттедж 3 уровня, блок+утепление +декоративная штукатурка, крыша –мягкая черепица, площадь помещений: 331.5(СНБ) 210.5/94.6/15.4, 2002 год постройки, 2019-2021 г. реновация. Уютный, ухоженный коттедж в тихом месте на не проездной улице. Первый этаж: -Просторный холл, гостиная с выходом на террасу, кухня , баня + бассейн со...
375 ... показать телефон ООО " Сильван-Инвест"
Зарегистрируйтесь через ваш аккаунт в соцсетях:
или через нашу форму:
Войдите через ваш аккаунт в соцсетях:
или введите логин и пароль:
Регистрация
Еще можно просмотреть номера телефона.

Для снятия ограничения нужна всего лишь регистрация.

Так мы защищаем информацию клиентов от роботов

Выбери квартиру за 2.99 BYN

  • Мы собираем и обрабатываем для вас информацию с 10 сайтов
  • Звоним по всем объявлениям со всего интернета
  • Задаем уточняющие вопросы
  • Получаем дополнительную информацию

Все это, чтобы вам было проще сделать выбор

Стоимость к этой информации - от 2.99 рублей в месяц

Выбрать тариф
Получите больше просмотров Вашего объявления

Получите х10 показов! Закрепите объявление в ТОПе и выделите его цветом.

Стоимость услуги - 15 рублей за 30 дней или 22 рубля за 60 дней.

Как это работает.

Ваше объявление будет выделено цветом и будет закреплено в результатах поиска под спецпозициями.

Для оплаты через ЕРИП:

Перейдите в раздел "Интернет-магазины/сервисы" -> "H" -> "Hata.by" -> "Оплата по номеру заказа"

Введите один номер заказа - либо , и проведите оплату.

В течение 30 минут мы обработаем оплату в автоматическом режиме и реклама начнет работать.

Получите больше просмотров Вашего объявления

Закрепите объявление в начале первой страницы каталога. Объявление будет находится над простыми объявлениями. Стоимость услуги - 50р. за 2 недели.

Как это работает.

Объявление закрепляется под спецпозициями на первой странице каталога. Бесплатные объявления находятся внизу результатов поиска. Таким образом, посетители сайта увидят ваше объявление в первую очередь.

Для оплаты через ЕРИП:

Перейдите в раздел "Интернет-магазины/сервисы" -> "H" -> "Hata.by" -> "Оплата по номеру заказа"

Введите номер заказа - 0 и проведите оплату.

В течение 30 минут мы обработаем оплату в автоматическом режиме и реклама начнет работать.

Забронировать объект
Ваше имя:
Заезд:
Дата заезда:
Время заезда:
Количество гостей:
Отезд:
Дата отезда:
Время отезда:
Ваш вопрос владельцу объявления:
Больше не выводить для меня
Я хочу сообщить, что данное объявление более не актуально.
Удаление объявления
У Вас есть доступ к номеру +375291963903 куда мы можем прислать код для подтверждения?
Изменить объявление
У Вас есть доступ к номеру +375291963903 куда мы можем прислать код для подтверждения?
Подписаться на изменение цены объекта
Введите ваш email:
Распечатать объявление
Заказать фотографа

Профессиональные фотографии интерьера

Для того что бы отразить все преимущества вашего объекта недвижимости и привлечь больше внимания от потенциальных клиентов, вы можете заказать услуги профессионального фотографа у нас.

Готовые фотографии вы получаете на электронную почту в течении 2-х рабочих дней.

Снимки делаются на широкоугольный объектив.

Заказы принимаются только по городу Минску

Вид объекта/Цена

1-комнатная квартира 60 руб.

2-комнатная квартира 80 руб.

3-комнатная квартира 100 руб.

Другое - Договорная

Для заказа услуг фотографа и консультации свяжитесь с нашими менеджерами по тел.: +375-44-550-45-45

Отображение на карте
Сохраните поиск
Введите Ваш email:
Период рассылки:
Добавить в избранное
Добавить объект в:
Чтобы добавить объект в список, создайте список